热式流量仪器在测量层流状态的流体时,测量的准确度和重复性是非常好的,因此,如果要使用热式流量仪器进行精确的测量,首选层流流体。但是,实际上,在测量流体的流量时,经常碰到的是湍流。湍流通常是由安装限制区如阀门或适配器等且流体有高流速而导致的。湍流会影响流体测量的精度,这在测量时是需要避免的。

湍流和层流
如何知道流体是层流还是湍流呢?
通常,流体流动有两种状态:层流和湍流。从下面的图中可以看到,圆柱管中使用墨水进行的可视化层流实验。墨水通过水流注入到玻璃管中间。当水的流速很低时,墨水似乎不会与水混合,流线是平行的,这称为层流。

如果水的流速增加,则水溶液中将会发生突然变化。水的流动完全被中断,水溶液会通过墨水溶液区域并变得非常均匀。此时的流体流线是混乱的,不再是线性的,这称为湍流。
雷诺系数(Re)的重要性
我们如何实现增加和减少雷诺数?从理论上将,流体的流态取决于四个变量:
(1)管径
(2)流体速度
(3)流体密度
(4)流体的动力粘度
雷诺数可用于描述流体流动状态是层流还是湍流。通常可以说,层流在低雷诺数(≤约2300)下发生,湍流在高雷诺数(≥3000)下发生。在这两个数字之间(Re=2300~3000),有一个“过渡流”,这意味着流动可以是层流或湍流(Re的数值适用于圆柱形导管)。
什么时候出现湍流效应呢?
湍流效应是一种常见的效应,安装限制区如阀门或适配器且流体有高流速时会发生湍流效应。在所有的限制区域位置,流量都已被中断,气体速度也将发生变化。除了使用限制区外,还需要考虑管道的长度。由于从湍流再次到层流需要花费一些时间,因此,使用正确的管道长度是非常重要的。
由于湍流会影响测量的准确性,因此,在测量之前在流量计的入口处防止发生湍流,使进入到流量计的流体呈现层流状态。但是,流量计本身可以看作流量控制器,可以看作是流量计后面的阀,因此,流量计流出的流体可能会再次引起湍流。
为什么带有旁路传感器的热式流量计会更加敏感呢?
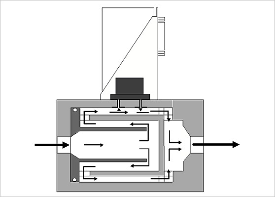
带有旁路传感器的仪器是基于流经限制区的主流和流经实际传感器的一小部分流体来工作的。这两种流量之间的比例取决于传感器上的压降和层流的限制,湍流效应将干扰该比率。由于带有旁路传感器的仪器通常用于非常准确的测量,因此,湍流效应会对测量结果产生巨大的影响。

如何操作才能较大程度地减少湍流的不利影响呢?
将热式质量流量计与旁路传感器一起使用时,建议进行以下操作:
1)尽量避免管路上出现限制区例如阀门、适配器或弯接头:
请勿将流量计直接安装在阀门等限制区的后面,但是,如果不能避免的话,则可以在阀门和流量计之间使用湍流过滤器,也可以使用带集成湍流过滤器的流量计。
应尽可能的避免在靠近流量计的位置使用弯接头。
2)使用正确的管道长度来限制流速。通常建议使用较小的管道长度为:
——流量计入口处管道直径的10倍
——流量计出口处管道直径的4倍
对于大于100 L/min的气体流量,通常至少要使用12mm或1/2”的导管。
3)在流体流过的通路中使用“湍流”过滤器
湍流过滤器将在流量到达传感器之前对其进行过滤,并使其再次成为层流。如今,大部分流量计在其内部集成了湍流过滤器或者流量计内部具有扩展的流路。


湍流的影响取决于实验过程和具体的应用
湍流是否造成破坏性的结果,很大程度上取决于具体的应用。例如在半导体工艺中,特别是在诸如层沉积之类的涂层工艺中,湍流是不允许出现的,流体的稳定过程是非常重要的。但是,在其他涂层工艺中,例如喷射技术中,由于会对流体施加很高的高压,此时湍流的影响是非常小的。
科里奥利力流量传感器
为了避免流体的湍流对测量准确度的影响,可以直接采用科里奥利力流量传感器。科里奥利力流量传感器的工作原理是当流体流过振动管时,产生科里奥利力,使管弯曲或扭曲。通过定位的传感器检测检测微弱的管位移并进行电学估算。由于传感器信号的测量相移与质量流量成正比,因此,科里奥利传感器可以直接测量质量流量。测量原理与密度、温度、粘度、压力、热容量或电导率无关。此外,科里奥利传感器还可以测量流体的密度和温度。

